西二旗地铁口 1.4万平米企业集团总部独栋首选 拎包入住
234.2万元/月
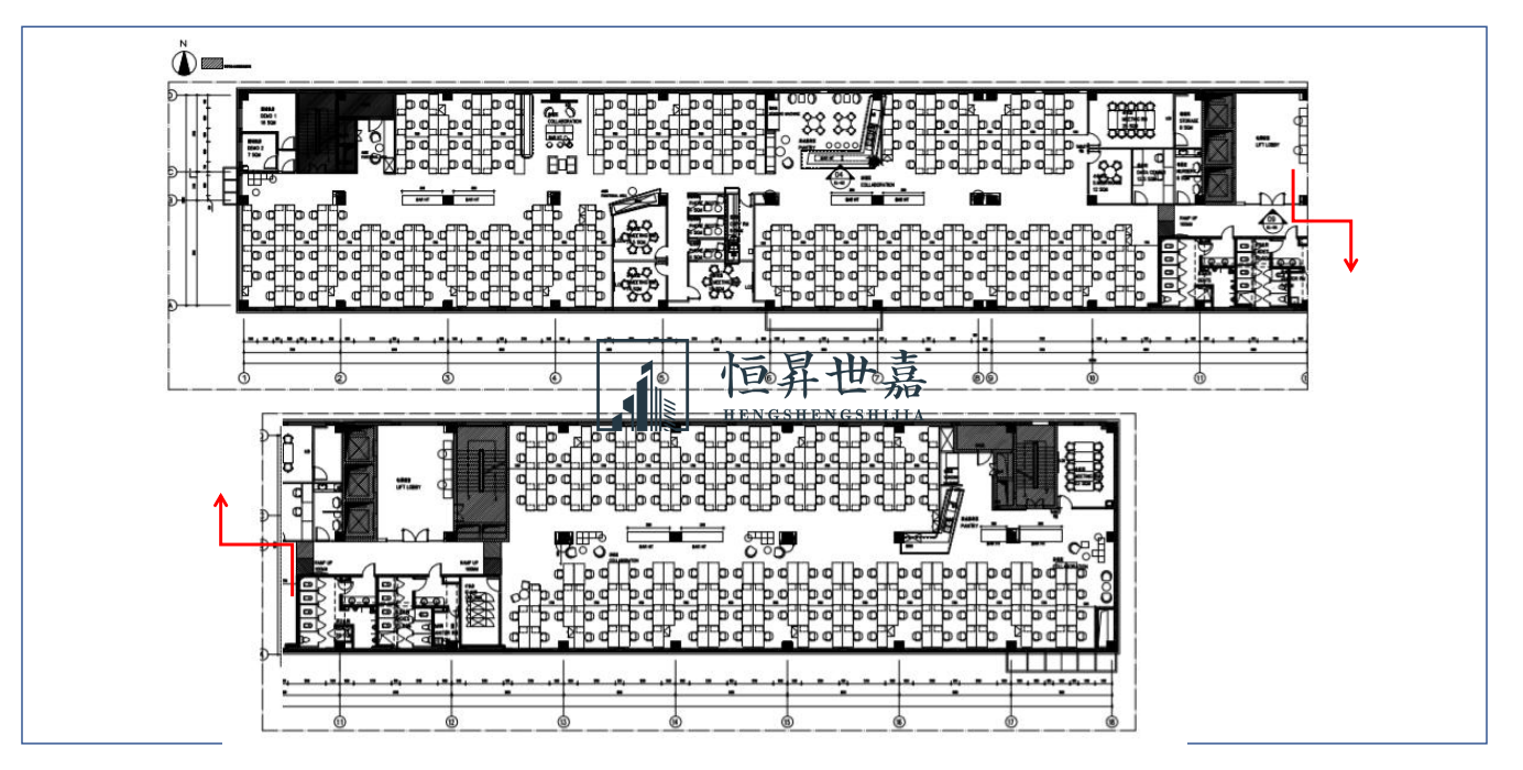
(5.5元/㎡·天)14000㎡
办公室面积
1394
可容纳工位数
可注册
工商注册
可分割
13号线清河站、西二旗站
全程2对1尊贵服务
恒昇世嘉专属顾问
400-885-8910
基本信息
欢迎您选择恒昇世嘉,一家专业的商业地产综合服务商
服务介绍:
1、企业服务顾问全程2对1尊贵服务,免费看房,专车接送。
2、专业团队高效匹配房源,为您省时省心。
3、服务过程严格把关,风险预估,为您在企业选址保驾护航。
4、免费的增值服务:行业数据分析,企业注册服务,法律咨询服务。
5、成交即送礼,开业花篮,装修补贴及个人红包大奖。
6、期待您的来电,竭诚为您服务。
| 可租时间 | 随时入住 | 装修 | 精装 |
| 工商注册 | 可注册 | 看房时间 | 随时看房 |
| 房间面积 | 14000 | 楼层 | 5 |
收费标准
| 租金 | 5.5元㎡.天 | 物业费 | 24元㎡.月 |
| 空调加时费 | 无 | 付款方式 | 押二付三 |
| 电费 | 1.3 | 车位费 | 免费车位 |
房源图片









所属项目
西二旗独栋
13号线清河站、西二旗站| 租金 | 5.5元㎡.天 |
| 在租房源 | 1 |
| 可租面积 | 14000 |