优投空间-数码大厦-20人间
26000元/月
独立空间
类型
60个
剩余工位数
精装修
装修
可分割
地铁4号线人民大学站
全程2对1尊贵服务
恒昇世嘉专属顾问
400-885-8910
基本信息
数码大厦新项目-
优投创新中心4号线人民大学地铁站C口20米
地址:北京市海淀区数码大厦A座35层
【项目亮点】带窗全明间,24小时空调,高层视野
【项目户型】20人间
【一价全含】26000元/月,含物业、取暖、制冷、发票、水、电、网。
【商业配套】银行(招商银行、中国银行、建设银行等)、咖啡、便利店、高端餐饮、商务酒店、会议中心。
【项目服务】提供24小时物业保障服务,包含水、电、网络、24小时空调、阅读区、咖啡机等。
欢迎您选择恒昇世嘉,一家专业的商业地产综合服务商
服务介绍:
1、企业服务顾问全程2对1尊贵服务,免费看房,专车接送。
2、专业团队高效匹配房源,为您省时省心。
3、服务过程严格把关,风险预估,为您在企业选址保驾护航。
4、免费的增值服务:行业数据分析,企业注册服务,法律咨询服务。
5、成交即送礼,开业花篮,装修补贴及个人红包大奖。
6、期待您的来电,竭诚为您服务。
| 可租时间 | 随时入住 | 装修 | 精装修 |
| 工商注册 | 可注册 | 看房时间 | 随时看房 |
| 房间面积 | 160㎡ | 楼层 | 32 |
收费标准
| 租金 | 26000元 | 物业费 | 无元㎡.月 |
| 空调加时费 | 无 | 付款方式 | 押二付三 |
| 电费 | 无 | 车位费 | 800/月 |
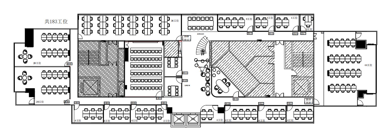
房源图片








所属项目
优投空间-数码大厦
地铁4号线人民大学站| 租金 | 1300元/月 |
| 在租房源 | 30 |
| 可租面积 | 1000 |